BANQUE POPULAIRE - Siège de Montigny
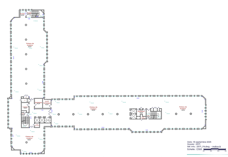
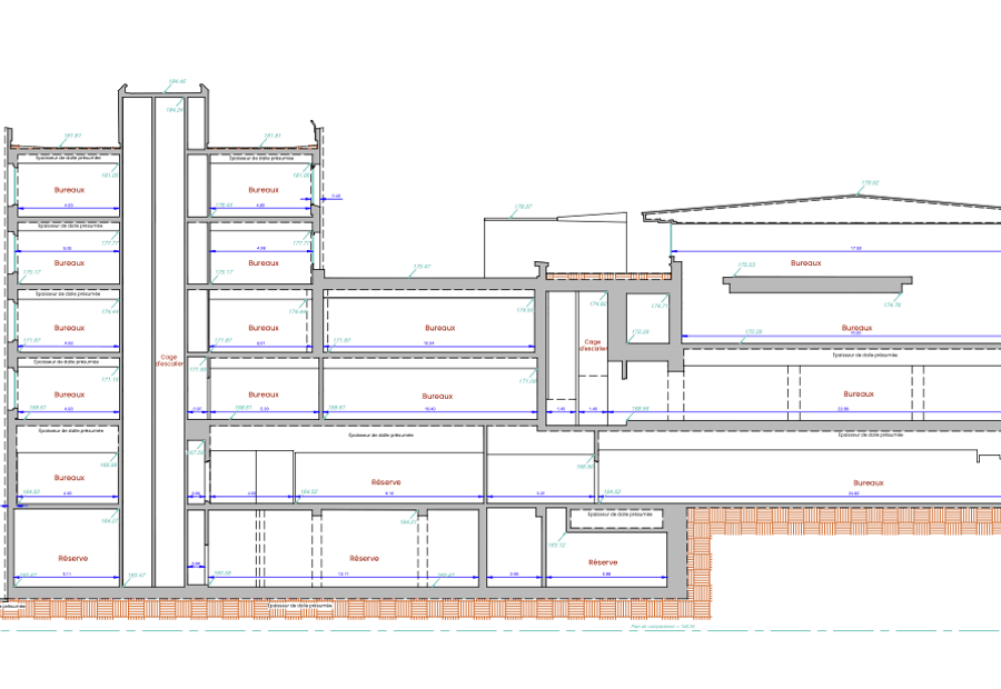
Dans le cadre de la restructuration complète de son siège social, cette banque nous a confié (par le biais de son AMO), les relevés complets du bâtiment.
Grâce à nos scanners 3D de dernière génération (Trimble X7 - Viametris MS-96), nous avons mesuré avec précision l'ensemble de l'immeuble afin d'en extraire un jeu de plans exhaustif : plans de niveaux intérieurs, coupes, élévations de façades et levé topographique des abords.
Livrés en quelques semaines, ces documents graphiques constituent la base indispensable sur laquelle les architectes s'appuient pour instruire leur dossier de permis de construire et conduire la rénovation profonde de cet actif.
Galerie


